Rate My Floorplan - Extension and Garage Conversion Thoughts
Discussion
Hi all
I'm starting to look at options for a garage conversion and potential extension and would welcome thoughts/feedback/advice from anyone who's done it before. This is the first time I've arranged anything more substantial than a bit of decorating and I imagine it's going to be a learning curve! I'm not suggesting I'm doing it myself, but before approaching builders it would be good to have an idea of what to ask/know and the process to follow.
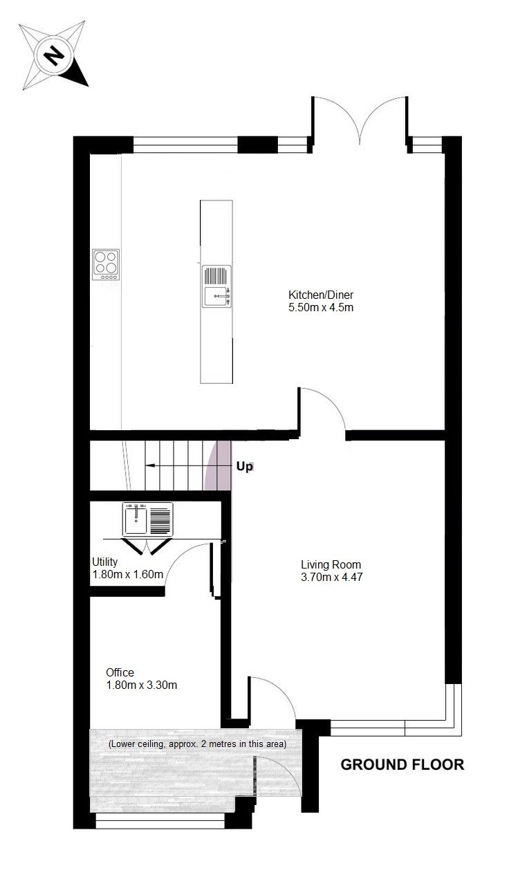
This is the current floorplan. Not sure what the agent used to measure it, but she should get a refund on the tape-measure... My corrections where relevant/very different.

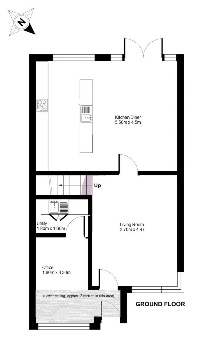
And after playing around with it in Paint, this is my initial thought:

My thoughts/questions are:

I'm starting to look at options for a garage conversion and potential extension and would welcome thoughts/feedback/advice from anyone who's done it before. This is the first time I've arranged anything more substantial than a bit of decorating and I imagine it's going to be a learning curve! I'm not suggesting I'm doing it myself, but before approaching builders it would be good to have an idea of what to ask/know and the process to follow.
This is the current floorplan. Not sure what the agent used to measure it, but she should get a refund on the tape-measure... My corrections where relevant/very different.
And after playing around with it in Paint, this is my initial thought:
My thoughts/questions are:
- Make the garage approx. 40cm narrower (this would make the wall end at the base of the stairs, which are actually a little further back than the original plan suggests) and would make the living room wider - This is the view down the stairs to show what I mean about the stair location - Sorry not a great photo but the only one I have on hand!
- Rear of garage to become utility room (washing machine is already plumbed here) - Would this size space be enough for a "loo-tility" and would a downstairs loo be a worthwhile addition?
- Front of garage gets window and becomes home office area. Reduced ceiling height at the front makes the existing porch feel tight, especially with so many doors, so considering letting this become open to the office zone and just keep the living room door
- Extend kitchen, effectively doubling its size, and create large kitchen-diner area. Thoughts are to rotate the layout by 90 degrees and have a larger entertaining space and to potentially have two skylights in the extended area. The extension may need to be a little narrower than the house (next door has already extended to same depth but has gone right up to the property line)
- I've kept the door in between living room/kitchen just to contain "kitchen smells" but in reality I wonder if decent ventilation would be enough and removing this wall would make the space feel much better, as the living room is already fairly compact. All walls are entirely hollow internally so no qualms about structural works.
How do you plan to satisfy the building regulations requirements in relation to inner-inner rooms that you’ve created?
From a means of escape perspective in the event of fire it’s not a desirable situation to pass through more than one room when escaping due to the risk this presents in your escape route becoming blocked yet and your layout means that you’ll now be going through two.
From a means of escape perspective in the event of fire it’s not a desirable situation to pass through more than one room when escaping due to the risk this presents in your escape route becoming blocked yet and your layout means that you’ll now be going through two.
How do you plan to satisfy the building regulations requirements in relation to inner-inner rooms that you’ve created?
From a means of escape perspective in the event of fire it’s not a desirable situation to pass through more than one room when escaping due to the risk this presents in your escape route becoming blocked yet and your layout means that you’ll now be going through two.
From a means of escape perspective in the event of fire it’s not a desirable situation to pass through more than one room when escaping due to the risk this presents in your escape route becoming blocked yet and your layout means that you’ll now be going through two.
573 said:
I wouldn't bother. Loads of faff and expense and you'll gain a tiny office put lose your garage. Put the money into moving.
The garage is just a dumping ground for things which should probably go in the loft, is too small for a car, and the door to the drive was already blocked off internally by previous owners. I'd rather use it as an office, even if it's a small one.smokey mow said:
How do you plan to satisfy the building regulations requirements in relation to inner-inner rooms that you ve created?
From a means of escape perspective in the event of fire it s not a desirable situation to pass through more than one room when escaping due to the risk this presents in your escape route becoming blocked yet and your layout means that you ll now be going through two.
I assume you're referring to either the utility and/or the removal of the door between the garage and porch? Do you have any links to further info I can read on that to understand the regs? (Other houses on the street have had similar utility-style rooms in their garage conversions, so I assume there's some way of doing it).From a means of escape perspective in the event of fire it s not a desirable situation to pass through more than one room when escaping due to the risk this presents in your escape route becoming blocked yet and your layout means that you ll now be going through two.
This is Pistonheads........garage conversions unless building bigger ones for more cars, will make you persona non grata 
Ignoring that, anything that involves moving a staircase like that is very expensive, so be prepared to order in an extra large tub of vaseline for when you get the quote from the builders, plus as mentioned already, you need to look at this from a regulations pov, which you are not clearly not doing. You need to consider load bearing wall locations and span of upstairs floors etc for layout impacts etc.,etc. as inoring the upstairs layout as well is missing the point, as the staircase move by so much will massively impact the upstairs layout as well, but you've not included that plan?
How long have you lived here, as given you are single, and have no need of a garage, it would likely be a lot cheaper to move to property that suits your entertainment objectives more, as it will be a lot cheaper than trying to do this.

Ignoring that, anything that involves moving a staircase like that is very expensive, so be prepared to order in an extra large tub of vaseline for when you get the quote from the builders, plus as mentioned already, you need to look at this from a regulations pov, which you are not clearly not doing. You need to consider load bearing wall locations and span of upstairs floors etc for layout impacts etc.,etc. as inoring the upstairs layout as well is missing the point, as the staircase move by so much will massively impact the upstairs layout as well, but you've not included that plan?
How long have you lived here, as given you are single, and have no need of a garage, it would likely be a lot cheaper to move to property that suits your entertainment objectives more, as it will be a lot cheaper than trying to do this.
Consider what walls are structural for the proposed changes as things like narrowing the garage slightly might mean a lot of work for minimal difference.
Also, depends on how you use the space but an office that is also somewhat a corridor and an entrace hall may not be the most ideal place to work.
I'm assuming you don't have the height under the stairs to get to the utility that way (directly off the kitchen) as opposed to around the front and through the office?
Also, depends on how you use the space but an office that is also somewhat a corridor and an entrace hall may not be the most ideal place to work.
I'm assuming you don't have the height under the stairs to get to the utility that way (directly off the kitchen) as opposed to around the front and through the office?
Moving the sink means embedding pipes in the floor, and your kitchen sink is the one most likely to get blocked in the first place, plus the chance for the washing up to fall off the back of the island.. I'd be tempted to have a L shape with the sink under the window, and then the island only needs electrical connections.
Run ethernet cables while you're at it! wifi's great but it's even better if your access points are connected by cables.
Do you need all of the office space, or could you keep the garage door with a couple of meters behind it to keep the lawn mower, bicycles etc?
Think about where you want the power sockets, light switches, etc, and then add some more power sockets.
Run ethernet cables while you're at it! wifi's great but it's even better if your access points are connected by cables.
Do you need all of the office space, or could you keep the garage door with a couple of meters behind it to keep the lawn mower, bicycles etc?
Think about where you want the power sockets, light switches, etc, and then add some more power sockets.
aeropilot said:
This is Pistonheads........garage conversions unless building bigger ones for more cars, will make you persona non grata 
Ignoring that, anything that involves moving a staircase like that is very expensive, so be prepared to order in an extra large tub of vaseline for when you get the quote from the builders, plus as mentioned already, you need to look at this from a regulations pov, which you are not clearly not doing. You need to consider load bearing wall locations and span of upstairs floors etc for layout impacts etc.,etc. as inoring the upstairs layout as well is missing the point, as the staircase move by so much will massively impact the upstairs layout as well, but you've not included that plan?
How long have you lived here, as given you are single, and have no need of a garage, it would likely be a lot cheaper to move to property that suits your entertainment objectives more, as it will be a lot cheaper than trying to do this.
Staircase isn't moving, only the garage wall 
Ignoring that, anything that involves moving a staircase like that is very expensive, so be prepared to order in an extra large tub of vaseline for when you get the quote from the builders, plus as mentioned already, you need to look at this from a regulations pov, which you are not clearly not doing. You need to consider load bearing wall locations and span of upstairs floors etc for layout impacts etc.,etc. as inoring the upstairs layout as well is missing the point, as the staircase move by so much will massively impact the upstairs layout as well, but you've not included that plan?
How long have you lived here, as given you are single, and have no need of a garage, it would likely be a lot cheaper to move to property that suits your entertainment objectives more, as it will be a lot cheaper than trying to do this.
All downstairs walls are hollow sounding when knocked - The garage/living room wall might be more significant (remains to be seen) but the kitchen/living room walls were installed by previous occupier to make it a kitchen/diner and living room rather than living/diner and kitchen so entirely removable.Juan B said:
I'm assuming you don't have the height under the stairs to get to the utility that way (directly off the kitchen) as opposed to around the front and through the office?
'fraid not! Utility area as shown is actually slightly reduced height under the stairs and in reality would be more built-in washer/dryer in cupboards rather than a sink.romeogolf said:
aeropilot said:
This is Pistonheads........garage conversions unless building bigger ones for more cars, will make you persona non grata 
Ignoring that, anything that involves moving a staircase like that is very expensive, so be prepared to order in an extra large tub of vaseline for when you get the quote from the builders, plus as mentioned already, you need to look at this from a regulations pov, which you are not clearly not doing. You need to consider load bearing wall locations and span of upstairs floors etc for layout impacts etc.,etc. as inoring the upstairs layout as well is missing the point, as the staircase move by so much will massively impact the upstairs layout as well, but you've not included that plan?
How long have you lived here, as given you are single, and have no need of a garage, it would likely be a lot cheaper to move to property that suits your entertainment objectives more, as it will be a lot cheaper than trying to do this.
Staircase isn't moving, only the garage wall 
Ignoring that, anything that involves moving a staircase like that is very expensive, so be prepared to order in an extra large tub of vaseline for when you get the quote from the builders, plus as mentioned already, you need to look at this from a regulations pov, which you are not clearly not doing. You need to consider load bearing wall locations and span of upstairs floors etc for layout impacts etc.,etc. as inoring the upstairs layout as well is missing the point, as the staircase move by so much will massively impact the upstairs layout as well, but you've not included that plan?
How long have you lived here, as given you are single, and have no need of a garage, it would likely be a lot cheaper to move to property that suits your entertainment objectives more, as it will be a lot cheaper than trying to do this.


Ezra said:
This is PistonHeads - losing the garage in favour of an office. You need a good sit down to think about your actions.
Yes. Rear alterations look OK however at the front, the obvious thing to do is to make the garage wider and change the remainder of the lounge into your office/utility room.romeogolf said:
smokey mow said:
How do you plan to satisfy the building regulations requirements in relation to inner-inner rooms that you ve created?
From a means of escape perspective in the event of fire it s not a desirable situation to pass through more than one room when escaping due to the risk this presents in your escape route becoming blocked yet and your layout means that you ll now be going through two.
I assume you're referring to either the utility and/or the removal of the door between the garage and porch? Do you have any links to further info I can read on that to understand the regs? (Other houses on the street have had similar utility-style rooms in their garage conversions, so I assume there's some way of doing it).From a means of escape perspective in the event of fire it s not a desirable situation to pass through more than one room when escaping due to the risk this presents in your escape route becoming blocked yet and your layout means that you ll now be going through two.
aeropilot said:
That's not what you plan and dimensions indicate...... 
I was worried that wasn't clear, hence the stair photo. The original floorplan by the agent shows the stairs ending right at the living room, but in reality they're a good 45cm further back. That's the extra space I was hoping to gain into the living room, leaving the stairs themselves as they are.
Forums | Homes, Gardens and DIY | Top of Page | What's New | My Stuff


