Ask a kitchen/interior designer anything
Discussion
singlecoil said:
Equus said:
RizzoTheRat said:
Any recommendations for reasonably easy to use room plan software that cope with different floor levels?
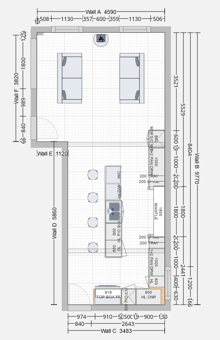
Without wishing to derail the OP's thread, SketchUp is the standard answer, here.Thanks. Here's where I've got to so far:


Notes which may be useful:
- 1800 Mantle will be a special order to be widened to 2600 as my wife wants an Aga

which is 1600mm wide. This allows for 2 x 300 side cupboards, 200mm extra 'over' the worktop (so leaving 200mm of worktop visible left and right of the Aga and so the Mantle actually lines up with the edges of the two "Tray" units. Hope that makes sense and very much open to ideas. Yes. Get rid of the Aga. I know.
- For me it feels like the run should not extend in to the 'top' part of the room. Aesthetically I think it should maybe line up with the end of the narrower part of the room?
- The end unit of the long run is an oven housing (because obviously we'll need ovens because we couldn't possibly expect to use the 1600mm wide lump in the middle of the kitchen for actual cooking). In that is a warming drawer, combi microwave oven, single oven.
- Door at the top of the plan is to the dining room, to the bottom is the hall.
- As yet I haven't got any wall units. The window is quite unfortunate. It seems to make sense to have a 1000 wide double door wall unit above the 1000 wide pan drawer at the top, but then I can't get the symmetry above the other pan drawer due to the window.
- Will be a 300mm overhang on the worktop at the island. Haven't yet figured out how to do that on the planner.
First world problems obviously! All advice and criticism very welcome!
Notes which may be useful:
- 1800 Mantle will be a special order to be widened to 2600 as my wife wants an Aga



- For me it feels like the run should not extend in to the 'top' part of the room. Aesthetically I think it should maybe line up with the end of the narrower part of the room?
- The end unit of the long run is an oven housing (because obviously we'll need ovens because we couldn't possibly expect to use the 1600mm wide lump in the middle of the kitchen for actual cooking). In that is a warming drawer, combi microwave oven, single oven.
- Door at the top of the plan is to the dining room, to the bottom is the hall.
- As yet I haven't got any wall units. The window is quite unfortunate. It seems to make sense to have a 1000 wide double door wall unit above the 1000 wide pan drawer at the top, but then I can't get the symmetry above the other pan drawer due to the window.
- Will be a 300mm overhang on the worktop at the island. Haven't yet figured out how to do that on the planner.
First world problems obviously! All advice and criticism very welcome!
dunkind said:
Why do you suggest to stay away from marble?
OP may have his own reasons, but from my own experience marble stains very easily.We have a sideboard with a marble top which we use a sort of drinks table and we have to be very careful with regards to rings and spills etc. We had one bottle of whisky with a bit of residue that left a mark, the marble sort of sucked it in and it won't ever come out. Bottles now sit on a tray, lesson learned!
I don't know if there's some sort of protective coating that can be put on it but if not I wouldn't have marble as a kitchen worktop as it the potential for ruining it would stress me out!
Tyndall said:
- Will be a 300mm overhang on the worktop at the island. Haven't yet figured out how to do that on the planner.
First world problems obviously! All advice and criticism very welcome!
It’s fairly similar to our recently refurbed kitchen - we have a hob though. Are people going to eat at the island, next to the sink? We both wanted the island to be a completely ’clean’ surface. Our sink is where your window is. We don’t have a window there (but our builders really wanted to put one in!) but the wall where your FF is is pretty well all glass patio doors. Our FF is at the other end, set into the utility room wall.First world problems obviously! All advice and criticism very welcome!
If the window gets in the way of your ideal plan then brick it up - we did that years ago with a window that was where we wanted the hob to be - but your kitchen looks like it might be dark there without it.
Tyndall said:
- 1800 Mantle will be a special order to be widened to 2600 as my wife wants an Aga
which is 1600mm wide. This allows for 2 x 300 side cupboards, 200mm extra 'over' the worktop (so leaving 200mm of worktop visible left and right of the Aga and so the Mantle actually lines up with the edges of the two "Tray" units. Hope that makes sense and very much open to ideas. Yes. Get rid of the Aga. I know.
Those extra wide Agas can dominate a room but yours is big enough to take it. I think you've incorporated it well into the design, I like that the sink & Aga are opposite one another, not only for aesthetics but in a practical sense when cooking. 


Tyndall said:
- For me it feels like the run should not extend in to the 'top' part of the room. Aesthetically I think it should maybe line up with the end of the narrower part of the room?
I know what you mean, this always looks bad in plan view. In reality it will look fine though! You could get around it by reducing the pan drawers from 1000 to 800 or 900 wide, but you'd be sacrificing storage and worktop space that I think you'd be better off keeping.Tyndall said:
- The end unit of the long run is an oven housing (because obviously we'll need ovens because we couldn't possibly expect to use the 1600mm wide lump in the middle of the kitchen for actual cooking). In that is a warming drawer, combi microwave oven, single oven.
I'm sensing the Aga wasn't your decision! I'm assuming you want to turn it off in the summer months due to the heat? If you're not and you want to leave it on all year round, I wouldn't bother with the separate appliances, it's perfectly possible to cook anything on an Aga once you get used to it.Split into two posts as the multi-quote stopped working:
If shopping for a white worktop I would personally go for a quartz over a marble. It performs a lot better - quartz is a mix of around 90-95 natural stone and 5-10% resin, and the resin forms a barrier so any stain will sit on top of the surface, rather than soak in. The price is usually around the same, so the only reason people would choose marble over quartz would be for the look. In my experience of selling mid-high end kitchens, most clients would go for a quartz after learning the above. It helped that our working kitchen in the store had a marble top so you could demonstrate where the stains and scratches were!
Tyndall said:
- As yet I haven't got any wall units. The window is quite unfortunate. It seems to make sense to have a 1000 wide double door wall unit above the 1000 wide pan drawer at the top, but then I can't get the symmetry above the other pan drawer due to the window.
Wall units aren't always necessary, you have what looks like a larder cupboard next to the fridge freezer, so you should be fine for non-perishable storage. If you really wanted a wall unit in that position, a trick I've used with good effect sometimes is to make the wall unit white (or the same colour as the wall) so it becomes less prominent. it might look a bit random in your design as it's only one wall unit, maybe the island or mantle would need to be white for it to tie in, but it can work surprisingly well and would be worth experimenting with colours in the planner.Tyndall said:
- Will be a 300mm overhang on the worktop at the island. Haven't yet figured out how to do that on the planner.
Just to note on the island worktop, it looks like your length will be around 3300mm. Not sure what worktop material you're planning to use, but just so you're aware some materials come in slab sizes smaller than this. For example, Silestone (quartz brand) are 3050x1400mm as standard, or they have 'Jumbo' slabs in some finishes but even these are only 3250x1590mm, so you'd need a join in your island.JagYouAre said:
OP may have his own reasons, but from my own experience marble stains very easily.
We have a sideboard with a marble top which we use a sort of drinks table and we have to be very careful with regards to rings and spills etc. We had one bottle of whisky with a bit of residue that left a mark, the marble sort of sucked it in and it won't ever come out. Bottles now sit on a tray, lesson learned!
I don't know if there's some sort of protective coating that can be put on it but if not I wouldn't have marble as a kitchen worktop as it the potential for ruining it would stress me out!
Exactly right, marble is porous so will absorb any spillages. Worst culprits are liquids like red wine & coffee but even dry spices such as tumeric & paprika can stain it. It's also a 'soft' stone, so will scratch easier than, for example, granite.We have a sideboard with a marble top which we use a sort of drinks table and we have to be very careful with regards to rings and spills etc. We had one bottle of whisky with a bit of residue that left a mark, the marble sort of sucked it in and it won't ever come out. Bottles now sit on a tray, lesson learned!
I don't know if there's some sort of protective coating that can be put on it but if not I wouldn't have marble as a kitchen worktop as it the potential for ruining it would stress me out!
If shopping for a white worktop I would personally go for a quartz over a marble. It performs a lot better - quartz is a mix of around 90-95 natural stone and 5-10% resin, and the resin forms a barrier so any stain will sit on top of the surface, rather than soak in. The price is usually around the same, so the only reason people would choose marble over quartz would be for the look. In my experience of selling mid-high end kitchens, most clients would go for a quartz after learning the above. It helped that our working kitchen in the store had a marble top so you could demonstrate where the stains and scratches were!
Tyndall said:
- 1800 Mantle will be a special order to be widened to 2600 as my wife wants an Aga 

which is 1600mm wide. This allows for 2 x 300 side cupboards, 200mm extra 'over' the worktop (so leaving 200mm of worktop visible left and right of the Aga and so the Mantle actually lines up with the edges of the two "Tray" units. Hope that makes sense and very much open to ideas. Yes. Get rid of the Aga. I know.
I'm not an interior designer by any stretch but wouldn't an Aga look quite out of place in a modern kitchen such as this? You already have your reservations it seems. I would have thought they look best in a farmhouse/country style kitchen.


Absolutely brilliant, thank you. I'll look at island dimensions and speak to slab people as a join wouldn't be ideal.
Re the Aga, ha - no not my decision but I've promised! it's actually a 3 oven main jobbie with a side module. The side module has an electric oven/grill, fan oven and 4 ring gas hob on top so the 'main' gas fired bit can be turned off in summer but we still have 2 ovens and a hob. Maybe extra ovens is overkill when I read that back!
It's one of these:
https://rangexchange.co.uk/products/copy-of-recond...
Re the Aga, ha - no not my decision but I've promised! it's actually a 3 oven main jobbie with a side module. The side module has an electric oven/grill, fan oven and 4 ring gas hob on top so the 'main' gas fired bit can be turned off in summer but we still have 2 ovens and a hob. Maybe extra ovens is overkill when I read that back!
It's one of these:
https://rangexchange.co.uk/products/copy-of-recond...
JagYouAre said:
I'm not an interior designer by any stretch but wouldn't an Aga look quite out of place in a modern kitchen such as this? You already have your reservations it seems. I would have thought they look best in a farmhouse/country style kitchen.
I guess the 3D render makes it look a bit modern, but it'll be oak beams, limestone floor and in-frame shaker kitchen with beading, traditional handles etc.RizzoTheRat said:
What else is good for mid range worktops these days? I'd prioritise scratch/stain resistance and probably heat proofing above looks.
Had an architect figure out our wall removal and stair case placement, now need to figure out the kitchen layout.
Ceramic/Porcelain £££ is the only material that truly covers all those requirements. You will probably have heard of Dekton - it's made by a Spanish company called Cosentino and they have very strong marketing which has created something similar to what Hoover did with the vacuum cleaner. Many people think Silestone and Dekton are material types but they are actually just their brand names for quarz and ceramic.Had an architect figure out our wall removal and stair case placement, now need to figure out the kitchen layout.
The problem with the above is cost, they are very expensive. Amazing material though, I cringe when I think about it, but when I worked in a kitchen showroom I used to use my key to scratch our Dekton worktop to prove it didn't mark. It was always a good party trick as it left a mark and it would shock clients until I wiped it away - it was actually removing material from my key the worktop was so hard!
Quartz ££ is what I mostly sold when I was working in design up until 2022. It's a good middle ground between cost/durability, but be aware it's not recommended that you put hot pans on the surface as this can react with the resin and cause marking. I've known people do it with no issues, but I personally wouldn't want to risk it. Prices can very hugely between price bands so check carefully.
Granite/Natural Stone ££ was really popular until the 2000's. Marble I've covered already and would personally avoid, but granite can be a good option for some people. It's still porous as it's a natural stone, but most granite is darker than marble so you don't notice staining anywhere near as much. Also being a natural stone you're fine to put hot pans directly onto it.
Wood/Timber/Oak ££ I would personally avoid for similar reasons to marble. Slightly different issue with wood, it's more an issue around sinks where water creates black spots over time. It can be nice as an accent feature incorporated into an island/seating area though, as it's nicer to sit at than stone.
Laminate £ is what most new builds are fitted with, and has come a long way since the awful ones you'd see 20-30 years ago with chipped/missing edging after a few years' use! Reasonably scratch/stain resistant depending on the colour/finish, but no to hot pans and you also have the added issue of water ingress around joints/edges. They can blow (chipboard inside gets wet and expands) if water gets into joints.
Edited by resolve10 on Wednesday 10th July 10:07
Have a think about how often you will use the seperate wall oven in the summer when the main AGA is off leaving you with just the two ovens in the AGA module, you are not making Christmas dinner in July and even if you are you can still fire up the main AGA the night before and open a window. I'd rather have the extra pantry space instead of the wall oven. I know this is PH and how many ovens you have matters, but you probably don't need seven.
One of the AGA ovens can be used instead of the warming drawer. Change the wall oven to an integrated microwave and save yourself some cash and space.
I really like the open storage above my AGA, it's where the pots live and is super convenient.

One of the AGA ovens can be used instead of the warming drawer. Change the wall oven to an integrated microwave and save yourself some cash and space.
I really like the open storage above my AGA, it's where the pots live and is super convenient.
Edited by paralla on Wednesday 10th July 10:18
We've recently moved house, we love the house but hate the kitchen layout.
We moved from an 1870s city terrace with a large separate dining room and large kitchen to a 1930s countryside house that just has a kitchen/pantry/utility room with no separate dining room.
The house was extended in the early 90s however they have retained the central structural pillar which is in the middle of the room and splits the room in two which we don't like.
Our initial thoughts are to knock down the central pillar, move the sink to a central island where the pillar currently is and then change the outside wall to a large sliding door.

We would also like to increase the pantry size and knock the wall through to the 'Study' room as this is a useless room for us.
Would this be the best approach is there a different way to go about things?
We moved from an 1870s city terrace with a large separate dining room and large kitchen to a 1930s countryside house that just has a kitchen/pantry/utility room with no separate dining room.
The house was extended in the early 90s however they have retained the central structural pillar which is in the middle of the room and splits the room in two which we don't like.
Our initial thoughts are to knock down the central pillar, move the sink to a central island where the pillar currently is and then change the outside wall to a large sliding door.
We would also like to increase the pantry size and knock the wall through to the 'Study' room as this is a useless room for us.
Would this be the best approach is there a different way to go about things?
paralla said:
Have a think about how often you will use the seperate wall oven in the summer when the main AGA is off leaving you with just the two ovens in the AGA module, you are not making Christmas dinner in July and even if you are you can still fire up the main AGA the night before and open a window. I'd rather have the extra pantry space instead of the wall oven. I know this is PH and how many ovens you have matters, but you probably don't need seven.
One of the AGA ovens can be used instead of the warming drawer. Change the wall oven to an integrated microwave and save yourself some cash and space.
I really like the open storage above my AGA, it's where the pots live and is super convenient.

Love that and great point about the warming drawer - instant win there, no need for it at all. I think in my mind I keep writing the Aga off as an expensive ornament but I really need to get on board!One of the AGA ovens can be used instead of the warming drawer. Change the wall oven to an integrated microwave and save yourself some cash and space.
I really like the open storage above my AGA, it's where the pots live and is super convenient.
Edited by paralla on Wednesday 10th July 10:18
I forgot to mention to make sure you install the AGA with the recommended amount of clearance between the sides of it and the adjoining work surface. If the top ever needs to come off the AGA (to reinsulate it) it makes the job far easier and avoids potentially damaging your work surface.
paralla said:
I forgot to mention to make sure you install the AGA with the recommended amount of clearance between the sides of it and the adjoining work surface. If the top ever needs to come off the AGA (to reinsulate it) it makes the job far easier and avoids potentially damaging your work surface.
Thanks for this, just spoken with them and it's 1606mm apparently, not the 1600mm I was working to. Glad I checked - back to the planner!Gassing Station | Homes, Gardens and DIY | Top of Page | What's New | My Stuff