Driveway lighting recommendations please
Discussion
Good evening folks
We live in an Edwardian semi and are about to embark on our driveway project.
Currently out house has a path up each side and a sunken 1970s garage. We are removing the garage and moving the right hand path over to the right to make a decent two car drive.
Currently this:

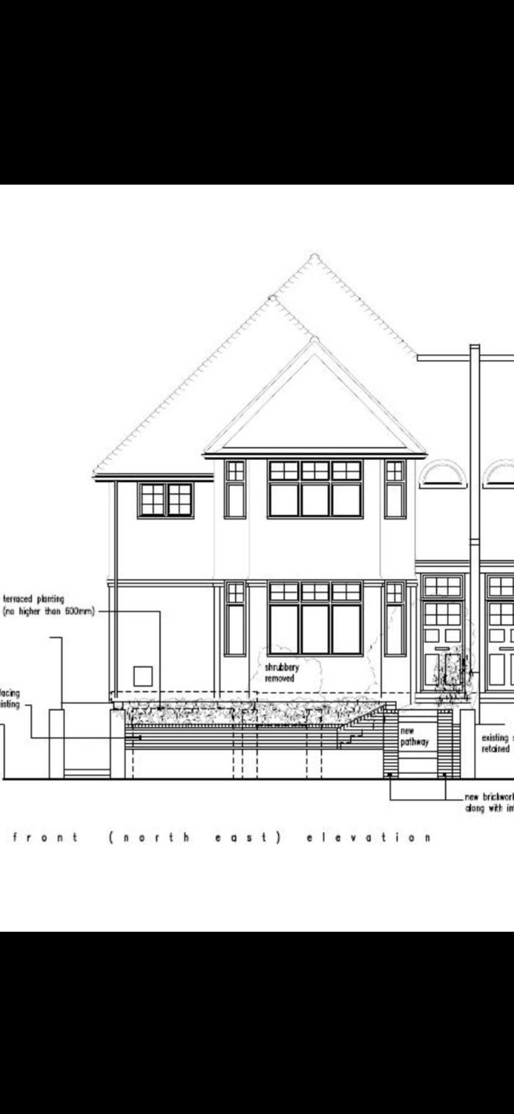
Driveway plans look like this. Hard to see but at the back of the bay is a stepped wall with a planter. We had to do this to avoid having a safety railing (we won't walk across the back raised path anyway.

Looking to have up/down lighters on the piers at each side of the driveway. Looking for top quality that won't corrode in a couple of years. Phillips hue do some- anyone tried them? Figured they should be nice quality?

Stuck for what to do along the back of the driveway recess. Build in floor lighting or just some down lights? Will get an electric car charging port in despite not having one currently as it seems to make sense to future proof.
Any suggestions very much appreciated as I'm sure plenty of you have done similar projects and I want to get it right first time! Handy being able to run all the wiring etc before the blocks go down.
We live in an Edwardian semi and are about to embark on our driveway project.
Currently out house has a path up each side and a sunken 1970s garage. We are removing the garage and moving the right hand path over to the right to make a decent two car drive.
Currently this:
Driveway plans look like this. Hard to see but at the back of the bay is a stepped wall with a planter. We had to do this to avoid having a safety railing (we won't walk across the back raised path anyway.
Looking to have up/down lighters on the piers at each side of the driveway. Looking for top quality that won't corrode in a couple of years. Phillips hue do some- anyone tried them? Figured they should be nice quality?
Stuck for what to do along the back of the driveway recess. Build in floor lighting or just some down lights? Will get an electric car charging port in despite not having one currently as it seems to make sense to future proof.
Any suggestions very much appreciated as I'm sure plenty of you have done similar projects and I want to get it right first time! Handy being able to run all the wiring etc before the blocks go down.
I would suggest not putting lights in the ground (typically the lights you see along the edges of brick block driveways). You will forever be fighting against water ingress causing them to trip a breaker. This typically happens thanks to our climate; there will be a lot of time where they will be wet / sat in water. I tried and eventually gave up.
For something you could deploy yourself, and has quite a big ecosystem, I’d suggest taking a look at Govee.
We’ve got several types of their products dotted around and touch wood, no issues so far (roughly 3yrs of use). I think they’re great vfm.
Used konstsmide on several properties and cannot remember any failing, last ones were there 8 years before we sold up.
https://www.konstsmide.se/uk/assortment/outdoor-li...
We had the Gemini range on an edwardian property and they looked great.
https://www.konstsmide.se/uk/assortment/outdoor-li...
We had the Gemini range on an edwardian property and they looked great.
LAP ones from Screwfix are similar to the Phillips ones you posted but cheaper. The consensus going by reviews and YouTube is to run an extra bead of silicone where the lens meets body and also to grease the screw caps top and bottom to prevent water ingress. A bit of a faff initially but future proofing saves you hassle in the long run. I've a couple around my house and haven't had any issues yet.
ukwill said:
I would suggest not putting lights in the ground (typically the lights you see along the edges of brick block driveways). You will forever be fighting against water ingress causing them to trip a breaker. This typically happens thanks to our climate; there will be a lot of time where they will be wet / sat in water. I tried and eventually gave up.
For something you could deploy yourself, and has quite a big ecosystem, I d suggest taking a look at Govee.
We ve got several types of their products dotted around and touch wood, no issues so far (roughly 3yrs of use). I think they re great vfm.
That's a very good shout re the sunken lights thank you, I can't be doing with messing about with leaks etc so I'll avoid. For something you could deploy yourself, and has quite a big ecosystem, I d suggest taking a look at Govee.
We ve got several types of their products dotted around and touch wood, no issues so far (roughly 3yrs of use). I think they re great vfm.
The govee lights look great. I haven't found an up/down lighter from them yet, I'll keep looking.
James_P said:
Used konstsmide on several properties and cannot remember any failing, last ones were there 8 years before we sold up.
https://www.konstsmide.se/uk/assortment/outdoor-li...
We had the Gemini range on an edwardian property and they looked great.
Thanks they look great! Huge range too, definitely some potentials there https://www.konstsmide.se/uk/assortment/outdoor-li...
We had the Gemini range on an edwardian property and they looked great.
beambeam1 said:
LAP ones from Screwfix are similar to the Phillips ones you posted but cheaper. The consensus going by reviews and YouTube is to run an extra bead of silicone where the lens meets body and also to grease the screw caps top and bottom to prevent water ingress. A bit of a faff initially but future proofing saves you hassle in the long run. I've a couple around my house and haven't had any issues yet.
I had the Screwfix Up/downlighters (£12.99 each) on our old house. One went rusty quickly but the other one lasted ok. Perhaps they aren't such a bad bet if easy to replace?
The Phillips ones are hue so can run off an app etc. hard to know if that makes them worth such a lot of extra money mind. Definitely food for thought.
Gassing Station | Homes, Gardens and DIY | Top of Page | What's New | My Stuff


