Supporting wall with chimney
Discussion
We are weighing up options for our kitchen and dining room and I'd like one huge open space.
Currently the litchen and dining room are separated by a structural wall with a chimney which is only used as a duct for the boiler which will be moved in to the airing cupboard.
Would it be best to dismantle the chimney (one of two so not aesthetically damaging) and have an RSJ to take the load of the wall above, or can we leave it in place and support it anyway?
Typically how much would it cost to remove a section of wall internally which is circa 12ft long and supporting?
Currently the litchen and dining room are separated by a structural wall with a chimney which is only used as a duct for the boiler which will be moved in to the airing cupboard.
Would it be best to dismantle the chimney (one of two so not aesthetically damaging) and have an RSJ to take the load of the wall above, or can we leave it in place and support it anyway?
Typically how much would it cost to remove a section of wall internally which is circa 12ft long and supporting?
Shouldn't need an architect.
I'd start by getting a few builders round.
Does the chimney breast go up in to the first floor? The steel will need to support that as well as the rest of the wall.
Do you have any pictures?. There are several knowledgable builders and structural engineers on here, probably even some local to you, and pictures would help to give them an idea.
Not sure how it works with building regs, or of you need them, but I'd imagine someone will need to check the calcs from the structural engineer to ensure the steel is the correct specification and is installed correctly.
I'd guess at a couple of days labour + a skip.
Probably a couple grand?
I'd start by getting a few builders round.
Does the chimney breast go up in to the first floor? The steel will need to support that as well as the rest of the wall.
Do you have any pictures?. There are several knowledgable builders and structural engineers on here, probably even some local to you, and pictures would help to give them an idea.
Not sure how it works with building regs, or of you need them, but I'd imagine someone will need to check the calcs from the structural engineer to ensure the steel is the correct specification and is installed correctly.
I'd guess at a couple of days labour + a skip.
Probably a couple grand?
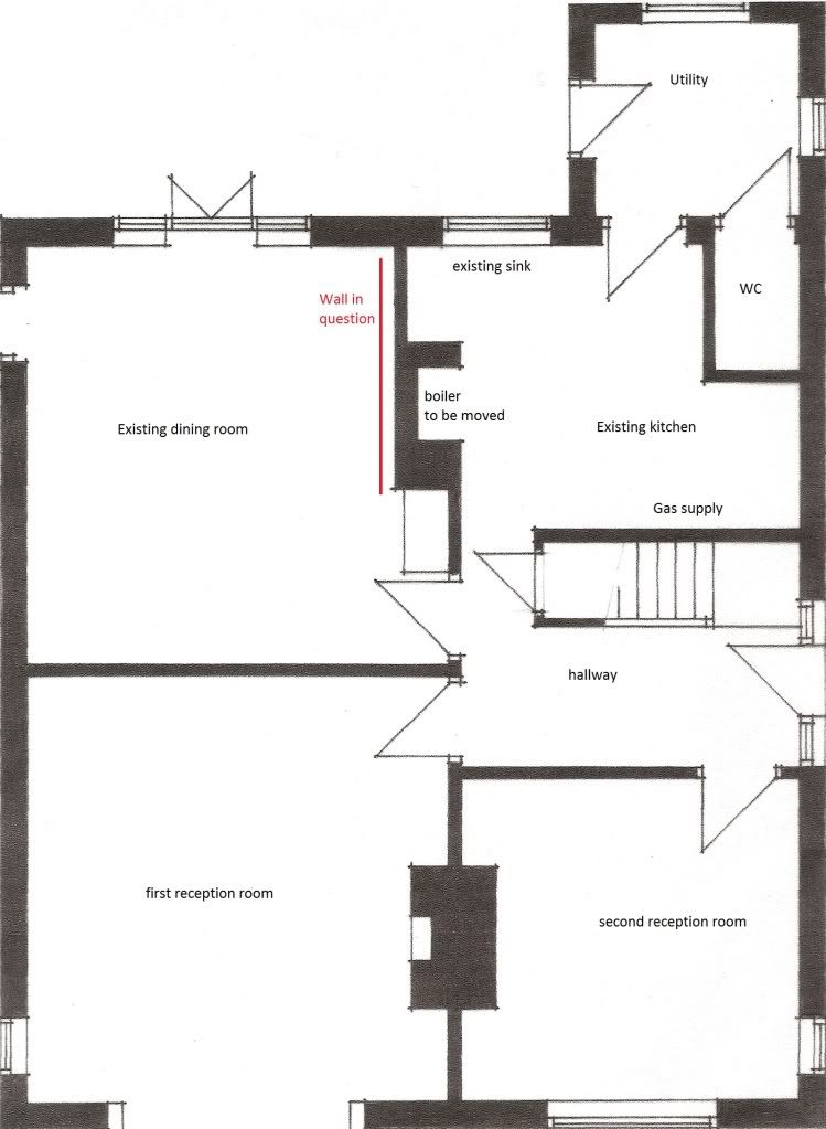
I've posted a rough plan which was hand-drawn by a retired architect. The wall supports the chimney too so that would be a consideration. We are unsure as to which way round to do it, i.e. do we have the new kitchen in the existing dining room or keep it where it is. Ideally we want a kitchen/diner/living area at the rear of the property.
Does this cast any more light? Thanks for your help so far.

Does this cast any more light? Thanks for your help so far.

Edited by Pferdestarke on Thursday 30th December 13:35

That can easily be done.

But that bit of brickwork will need supporting, if it carries on up in the first floor?
You could take it down up until the ceiling joist and put a timber in across the joists to support it. I think that's what we done when we took our chimney breast out.
I'm not sure if that's the proper way of doing it, but we've had no problems. It doesn't look like a huge amount of brickwork will need to be supported, so the timber might be adequate.
Another way would be to put a metal L shaped bracket with some diagonal bracing to support it. That can definitely be done, as I've seen my mate do it on a similar job before.
Again, though, a decent builder or structural engineer will know the best way to support it.
ETA - for the sake of the plumbing/services, I'd leave the kitchen where it is. Although it's not a huge amount of work if you were to move the kitchen in to the other room.
Edited by Slagathore on Thursday 30th December 14:40
Gassing Station | Homes, Gardens and DIY | Top of Page | What's New | My Stuff


